The Gavit (Narthex) Hall of Tatev Monastery
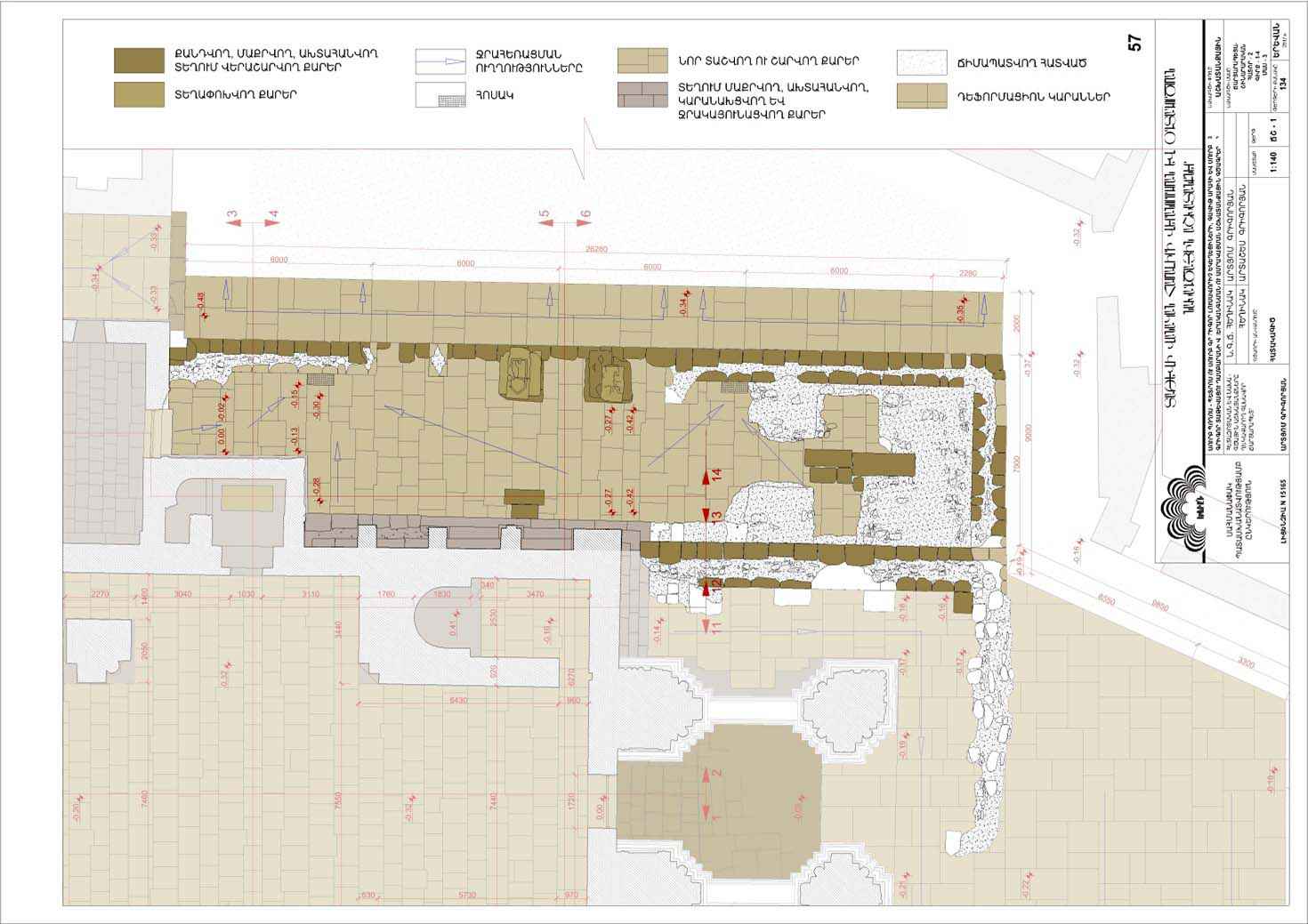
The Gavit (Narthex) Hall was built in 1043 during the reign of Bishop Hovhannes. It adjoined the Church of St. Peter and Paul on the north side and the Church of St. Gregory the Illuminator on the east side. Halls adjacent to churches were quite common in medieval monasteries in Armenia. They were usually used as meeting rooms as well as schools (as, for example, in the Sanahin monastery). There is no exact information about the purpose of the Tatev Gavit Hall. It is noteworthy that in 1787, in the north-eastern corner of the Gavit Hall, opposite to the northern entrance to the Church of St. Peter and Paul, the tomb of the great scientist, orator and philosopher of the XIV century, St. Grigor Tatevatsi , was built. The Gavit was somewhat destroyed and was restored. It was last destroyed during the 1931 Zangezur earthquake. Many graves were located in the Gavit Hall; two tombstones have survived. From the Gavit Hall, only the lower part of the masonry of the vaulted northern wall, adjacent to the Church of St. Peter and Paul, and the foundations uncovered by excavations in 2015, has survived. The surviving parts of the building, its traces on the neighboring churches and archival materials make it possible to form a very definite idea of the Gavit Hall composition.
The restoration project developed in 2014–2016 assumes:
- disassembly and new laying of weakened stones in the upper row of the northern wall, adding one row in accordance with the curvature of the vault
- execution of a drainage outlet on the upper surface of the wall
- filling, cleaning and disinfection of masonry joints






